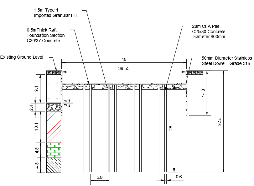
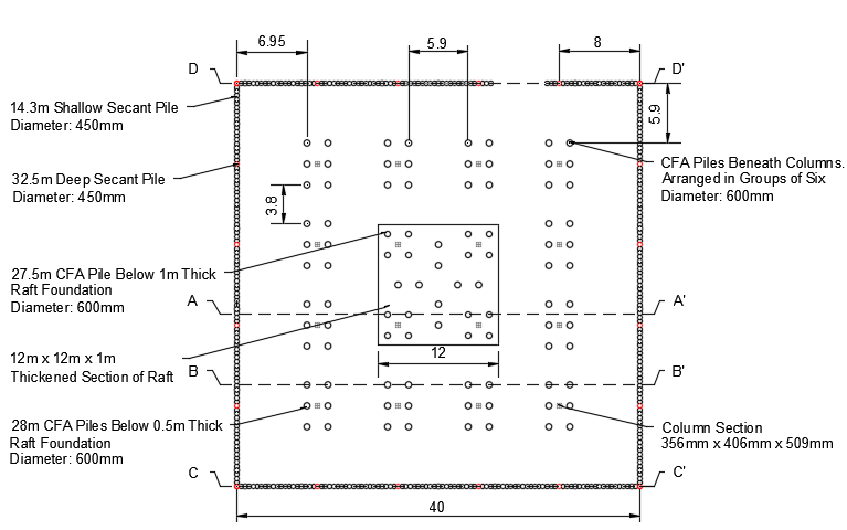
I have used AutoCAD extensively across many university projects, developing strong skills in producing accurate and professional drawings. It has been a key tool throughout my studies, allowing me to effectively present and communicate design work. Below is a selection of my work that demonstrates my experience with the software.







